
发布日期:2026-03-04 来源: 网络 阅读量()
伟德国际(bevictor·1946)源自英国官方网站-国贸&嘉悦投资竞得青浦区赵巷镇佳恒路南侧B3A-01、B3A-02、B3B-01地块,溢价率8.96%,总价约33.08亿拿下该幅打包地块,成交楼板价为24484元/㎡,房地联动价54500元/㎡!
B3A-02地块:拟建6栋16-17F高层住宅、3栋1F商业裙房以及若干配套用房,住宅套数下限376套;
B3B-01地块:拟建7栋17F高层住宅、1栋28F保障房、1栋3F菜场以及若干配套用房,住宅套数下限568套!
作为深耕上海的老牌国企之一,国贸地产近年来已经筑造了多个住宅标杆,例如国贸天悦、国贸佘山原墅和国贸凤凰原等“原系”项目,积累了口碑极高的产品力和交付力。
国贸根据地块的特点,引入“微度假”的概念,打造了一个既有“休闲氛围”又有“丰富体验”的社区。
国贸地产代建了一座约1.8万方的滨河市政公园,而且三座岛屿社区都有不同的主题,并设置了非常丰富的景观节点。
由于2条天然水系的存在,整个社区可以被环绕成一个紧密的小型生态系统,有效地形成一道环境保护屏障。
社区采用简约现代的设计理念,建筑风格简洁大方,立面采用大面积玻璃窗和仿石多彩漆,局部使用金属线条。
首层基座采用人造石材+铝板等装饰材料,增强建筑整体感和精致度;顶层外挑飘板使建筑立面更加清晰,层次感更丰富。
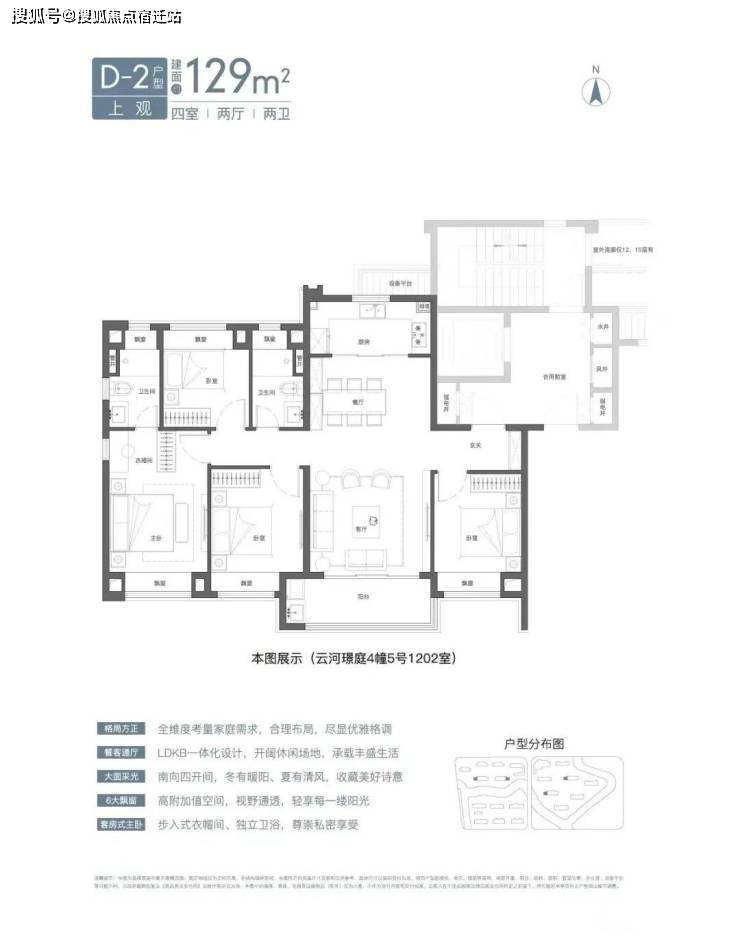
本次加推收官132套房源,两栋楼的位置非常好,被水系环绕,且非常接近地铁站!主力户型为建面约105㎡3房,以及建面约129㎡4房,均价56352元/㎡,预计将于近期开启认购!
尺度震撼:宽厅面宽约5.5米,3.5开间面宽共约11.5米,再加上约8㎡的阳台,使得整个家庭的公共区域尺度感十足、功能也更加灵活多变。
4房+大面宽+大阳台,尺度感和空间感都相当强,也给予600万级购房者在虹桥改善的好机会!
另外项目装修也很诚意,中央空调、地暖均为国内或国外一线品牌,同时配置净水器、全屋智能马桶、以及厨房贴心配备凉霸等。
所在的赵巷板块,住宅用地规划占比极少,汇聚世界级商务资源,距离大虹桥核芯商务区仅5站地铁,未来商务能级不断攀升!
在上海2035规划中,虹桥主城区被定义为城市副中心。未来大虹桥将会以更现代化的设计理念,打造为生态宜居、功能完善、现代化的城市副中心。示意图,仅供参考
2023年年初,在原有“大交通”“大会展”“大商务”三大功能的基础上,大虹桥新增加了“大科创”功能,大科创的核芯——青浦赵巷。
赵巷将建设成为生态科技之城、上海人文之源、上海西部科创型的综合城镇。拥有长三角一体化、进博会、大虹桥国际枢纽、青浦新城多个重大战略“蕞佳中场”区位优势的赵巷,确定了“两带一圈”经济发展的定位,就是建设长三角数字干线赵巷软信经济带、环国展奥莱商旅秀带和大虹桥新消费体验极圈。
国贸·虹桥璟上 所在的赵巷板块,还拥有上海市“一中四方”战略的西部重点园区——市西信息软件园!与如今上海首屈一指的科创产业高地张江、紫竹、市北高新平起平坐,未来将成为西部发展的一大支点、下一个张江或紫竹!
产业能级不仅更高,而且兑现更快。项目紧邻以嘉松中路站为核芯的科创产业集群,此处正在打造漕河泾赵巷科技绿洲,定位为千亿级产业园区。
目前,长三角绿洲智谷•赵巷园区这座现代化科技园区已经崭露头角,它的建成标志着区域科技实力的飞跃。
目前字节跳动(今日头条/抖音)、日本骊住亚太研发中心、商汤科技、术康医疗等企业已入驻。近期又吸引了行业标杆型上市企业和全球总部,如科顺股份、欣巴科技、云门科技等。(信息来源:绿色青浦官微)
同时,网易上海国际文创科技园、上海红豆数创园、北斗赵巷园区以及云门数字科技等重点项目在建中,将为区域创新发展注入新的活力。科技创新的浪潮正在涌动,未来无限可期。
市西软件信息园核芯区内,住宅用地不到园区的十分之一。这种特殊的土地规划,仿佛是对张江、漕河泾等地成功经验的完美复制,赋予了这片土地强大的发展潜力和吸引力。
坦白说,想要在核芯区占据一席之地,约500万级成本可能只是转瞬即逝的机会。而在这个风口浪尖上,「国贸虹桥璟上售楼处预约咨询热线
而同能级的赵巷正处于价值迸发期,国贸虹桥璟上这样的科创“原始股”实属资产配置的优质筹码!
千亿级产业赋能,未来15万人口导入,「国贸虹桥璟上售楼处预约咨询热线」将成为首个产业承载住区!纵观所有不动产资产配置的正向因子,科创能量必将是价值拉升利器!
相较过去,大家的购房决策更加理性,少了投机的心态,更加看重周边配套的完善程度。
赵巷板块的商业、教育、医疗、交通、生态资源丰富,「国贸虹桥璟上售楼处预约咨询热线」优质生活配套资源环伺!
」项目内部自带商业!不惜成本打造了约1350㎡自持商业街、约1800㎡自持菜市场完全满足日常生活购物所需!除了17号线上一路连缀的商业体,蟠龙天地、万科天空广场、青浦首位奥特莱斯等,项目直线米处,还有在建中的长三角绿洲智谷·Terrace Park日式商业,预计今年开业!约5.5万方滨水商业休闲空间,将融入流行餐饮、时尚购物、影院健身、亲子娱乐、活力零售、智能科技、屋顶运动公园等多元商业服务。
Terrace Park示意图,仅供参考项目一路之隔为国贸代建两所9年一贯制学校(小学+初中),附近还有众多优质国际化教育资源,如宋庆龄学校、协和双语、崧泽学校等。(新房不承诺学区对口,具体以政府发布批文为准)
项目附近医疗资源也比较优质,直线家三级医院:直线公里到德达医院(三级私立医院)、约6公里到上海医大医院(三级综合)、约6.8公里到复旦大学附属华山医院(西虹桥分院)(三级甲等) 。
项目目前实景示范区所在的位置,将由开发商代建约1.8万㎡的城市森氧公园,未来将是家庭露营、亲子玩乐、健身休闲圣地。
附近还有众多大型市级生态绿地资源:赵巷体育公园、4A级景点佘山森林公园等,周末露营郊游相当惬意!
平台声明:该文观点仅代表作者本人,搜狐号系信息发布平台,搜狐仅提供信息存储空间服务。