设为首页添加收藏

您好! 欢迎来到伟德国际建材科技有限公司

微博
扫码关注官方微博
微信
扫码关注官方微信
电话:0734-8853689

您的位置: 主页 > 伟德国际新闻 > 行业动态
行业动态

伟德bv1946官网-陆家嘴太古源源邸售楼处电话-已认证-太古源源邸楼盘价格户型地址前台电话环境配套交房时间

发布日期:2026-03-18 来源: 网络 阅读量(

  伟德国际(bevictor·1946)源自英国官方网站-说明:以上三组为同一官方服务热线,拨打后按语音提示转接对应部门,无需重复记录

  认准统一热线,警惕“代办、留房费、茶水费”等违规承诺;以开发商/售楼处官方口径为准。

  如遇开放时间或接待安排调整,请以电话客服最新通知为准,避免因信息滞后影响行程。

  看房请务必提前致电销售确认时间,只有预约客户才能享受开发商提供的内部优惠以及专属的老客户推荐奖励!我们提供专业的一对一热情服务,助您以专业视角挑选理想的房产

  正因如此,越是顶级的豪宅,越要将“稀缺”刻入基因——而若论上海真正称得上绝对稀缺的地段,则非陆家嘴滨江莫属。

  在这里,每一寸土地都历经淬炼,每一次亮相都万众瞩目。作为这一传奇地脉上的藏品,陆家嘴太古源 源邸的诞生,正是对“绝对稀缺”最极致的回应——

  1.坐落于陆家嘴滨江,集全球城市+金融CBD+一线滨水三大要素于一体,对标纽约曼哈顿中城、伦敦金融城、香港中环维港,具备成为全球资产的地段要素;

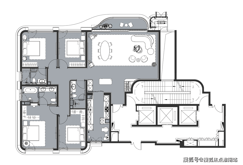
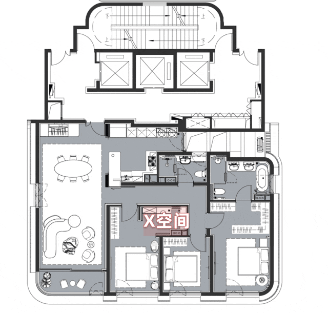
  3.约54万方超级滨江综合体(含西区地下车库面积),建面约180-240㎡户型,三梯三户,建面约388㎡宽幕大宅,三梯两户,世界级设计师联袂打造,公区全域亮相,惊艳全球,产品基本面稳固。

  如今,陆家嘴太古源 源邸五批次即将加推,封藏陆家嘴一线江景的机会,越来越少了!

  陆家嘴太古源 源邸共配置超6000㎡的双重会所,两大会所中,位于空中连廊下方的源CLUB会所超4000㎡,目前已经对外实景开放。

  真正的艺术,从不靠复杂的堆料,而是用顶级的审美和匠心所致的工艺,就完成了世界级的美学盛况。

  PLPL设计,HWCD软装,在大师的联袂执笔之下,整个会所达到了与自然的无界交融。

  进入会所空间的步道中,蜿蜒曲折的墙面,犹如黄浦江江面,视觉上的无限延伸,不止是在简单诉说曲线的优美,更像是一场与陆家嘴澎湃城市气象的对话。

  自然天光的引入,映射在整座镜面泳池之上,是整座城市上空的风景。高达约10米的跌水瀑布,带来了非常强烈的视觉冲击

  躺在泳池里,仰望上空,通过城市天空与水面倒影,构成了一个完整的、互动的景观剧场,形成了“你在泳池看天空,而你也成了这座城市的风景”的奇妙体验,这种奇妙循环,带着对生活的哲思。

  私宴厅、红酒吧、茶室,为业主提供了专属的宴饮空间,未来商务宴请、家庭聚会、品茗交友,均可在会所展开。

  艺术格调也同步于此蔓延,私宴厅外,陈逸飞先生的雕塑目前正在临展,为期半年,尽显东方优雅。

  健身空间,配置华尔道夫酒店同款泰诺健健身器材,被称为“健身器械中的法拉利”,正对采光井,自然光的引入,折射出地面材质的温润,高大乔木置于眼前,寓意向上生长。

  就在11月,上海市建设市场信息服务平台发布“洋泾西区E08-4、E10-2、E12-1地块连廊项目”资格预审公告,显示项目已进入工程实施前的招采推进阶段。

  通过巨柱架空设计,将前后排建筑架空抬升至约9-22米。1楼相当于其他小区的3-4F,滨江首排,享一线江景;并通过架设城市绿桥,直接连通小区与滨江步道,未来业主下楼不用过马路,直接就可以走到滨江步道,沿岸风光,随心享受。

  陆家嘴太古源 源邸建面约180-388㎡样板间的实景呈现,也真正意义上诠释了,何为藏品级的兑现。

  建面约180㎡大平层,参考前期,总价约3000万左右,抢住陆家嘴一线滨江。

  整体户型全明通透,卧室全朝南,往西可以品味陆家嘴标志性三件套的耸入云端,百年工业遗存、新质生产力、金融资本集聚和摩登都会感在此刻交汇。

  在功能空间的尺度上,整个客餐厅面积达到了约40㎡,主卧套房则拥有约30㎡大空间,足以媲美市面上建面约240㎡的产品。

  约240㎡ 4房产品,是典型的大面宽产品,临江面的面宽,超16米!超大面宽客厅结合弧形阳台,搭配着270°大面积宽幅全高玻璃窗,将整个滨江景观尽收眼底!

  只有站在陆家嘴太古源 源邸的阳台之上,感受江风吹过,才能真正知道一线滨江价值所在!

  两南两北的四房布局,使得240㎡户型具有江景与采光平权属性,可以更灵活的布置生活空间。亲江套房约25㎡,配有独立卫浴,提升居住体验。

  细节方面,随处可见的装饰艺术,让前来参观的每一位购房者、业界同行,都赞叹不已:

  超大面宽客厅结合弧形阳台,搭配着270°大面积宽幅全高玻璃窗,将整个滨江景观尽收眼底!

  自入市以来,陆家嘴太古源 源邸前几批次推出即获得高去化:三批次推出83套,开盘当天就成交约36亿元,项目开盘十个月累计销售额近百亿!

  在当前更趋理性的高端市场里,这样的表现本身就是一种“投票”——高净值人群已经用真金白银,提前验证了这类产品的稀缺与价值。

  一线滨江住宅地块的规划本就极少,且绝大多数已经是现状住宅或存量豪宅项目,新房供给进入“个位数时代”。

  在供给端几乎锁死的前提下,陆家嘴滨江的产品,每多推出一批,市场上就少一个“以后还能替代”的选项。

  这也是为什么过去十年里,陆家嘴滨江新房的价格中枢一路抬升,供不应求几乎成为常态——即便周期波动,真正核心的地段,往往只是“价格在喘气”,而不是“价值在打折”。

  根据规划,陆家嘴太古源 源邸所处的杨浦-民生段将“在保护和发展中用好百年工业遗存和水岸文化资源,依托互联网产业集聚优势,抓住发展机遇,促进区域整体转型,打造工业遗产与新质生产力充分融合的新秀带。 ”

  民生码头作为浦东滨江板块的一部分,前面是民生艺术广场,每天有大量的人在这里驻足和拍摄,可以饱览对岸的天际线,能望见远处的杨浦大桥,架设的钢结构步道可供骑行和跑步。

  再比如,八万吨筒仓,已经成为陆家嘴滨江最重要的艺术展场之一。自2017年之后,聚集在此的则是来自世界各地的民众、艺术家、策展人等。

  一座城市的产业结构调整中,工业退去之后,往往是文化产业的兴起,也就是转化为人的活动空间。工艺遗存实现活化,特色生活水岸的构建,既有艺术与生活带来的温度,又有历史文脉的厚度。

  陆家嘴滨江的规划开发,带来的并不仅仅是物质生活上的提升,更是精神世界的丰富,这里代表着一线水岸生活的Next Top Level!

  说明:以上三组为同一官方服务热线,拨打后按语音提示转接对应部门,无需重复记录

  认准统一热线,警惕“代办、留房费、茶水费”等违规承诺;以开发商/售楼处官方口径为准。

  如遇开放时间或接待安排调整,请以电话客服最新通知为准,避免因信息滞后影响行程。

  看房请务必提前致电销售确认时间,只有预约客户才能享受开发商提供的内部优惠以及专属的老客户推荐奖励!我们提供专业的一对一热情服务,助您以专业视角挑选理想的房产

  在上海购房,以下是一些重要的注意事项,涵盖政策、贷款、税费、选房等多个方面:

  非上海户籍:外环外需1年社保/个税,不限购套数;外环内需3年社保/个税,限购1套(多子女家庭或持有居住证积分达120分可多购)。

  特殊情况:非沪籍置换住房(出售上海唯一住房后购买)可不受社保限制,但需满足网签时间等条件。

  首套房免征房产税;二套及以上住房按家庭人均面积计算,人均60㎡免税,超出部分按税率征收(0.4%或0.6%)。

  首套和二套商业贷款利率不再区分,目前执行利率约为3.05%(首套)、3.09%(二套)。

  贷款额度最高可达184万(首套)、149.5万(二套),多子女家庭额度更高。

  契税:首套住房面积≤140㎡按1%征收,>140㎡按1.5%征收;二套住房面积≤140㎡按1%征收,>140㎡按2%征收。

  商业贷款房龄一般不超过40年,公积金贷款对房龄限制更严格(如房龄>35年,贷款年限不超过15年)。

  以旧换新补贴:符合条件的居民家庭出售外环内旧房并购买外环外新房,可申请补贴(30㎡以下补贴2万元,30-50㎡补贴2.5万元,50-70㎡补贴3万元)。

  建议购房前仔细核对自身资质,结合政策和实际需求选择合适房源,并咨询专业机构或律师,

  户型设计更优:新房普遍采用高得房率设计,如多阳台、飘窗整合等,实际使用空间更大。例如部分120㎡新房通过合理布局,可实现相当于传统130-140㎡的空间感,且功能分区更合理,减少空间浪费。

  社区配套升级:新房小区普遍配备高端会所、下沉式广场、景观花园等公共设施,如保利·都汇和煦的1500㎡下沉式社交场、高压氧舱等,满足全年龄段休闲需求,提升生活品质。

  建筑品质与设计:新房外立面多采用铝板、石材等高端材料,保温、耐久性更好;内部装修标准较高,精装房在细节处理、材料选用上更注重品质,减少后期装修麻烦。

  板块标杆效应:新房往往成为所在板块的新标杆,带动周边二手房价格重估。例如大宁、唐镇等板块的新房入市,使周边次新房价格有所调整,新房自身因产品优势更具保值潜力。

  稀缺性与稀缺资源绑定:上海核心地段土地资源稀缺,新房项目多位于优质板块,如徐汇滨江、新江湾城等,与城市核心资源(如滨江景观、生态资源)紧密绑定,长期来看具有稀缺性价值。

  政策与市场预期:上海作为经济中心,城市吸引力强,人口持续流入支撑住房需求。尽管市场存在波动,但长期来看,上海房产仍被视为相对稳健的资产配置选择,尤其对于有长期居住或投资需求的群体。

  全新居住体验:新房意味着全新的居住环境,无历史遗留问题(如房屋老化、邻里纠纷等),购房者可享受全新的设施和服务,满足对高品质生活的追求。

  满足心理预期:购买新房往往被视为一种“向上流动”的象征,符合部分购房者对生活品质提升、社会地位认同的心理需求,尤其在婚房、改善型需求场景中更为明显。

  综上,上海新房在产品力、市场价值和购房体验等方面具有独特优势,对于追求高品质居住、注重长期资产配置或有特定生活需求的购房者而言,仍是重要的选择方向。返回搜狐,查看更多